醫院走廊扶手安裝四步走
現代化的醫院里從設計之初就有走廊扶手的存在了,從當初款式、材質的單一到現在有越來越多的款式可供選擇,今天小編來說一說我們在醫院里的一款小圓管形走廊扶手的安裝步驟。

38mm寬的醫院走廊扶手安裝步驟:
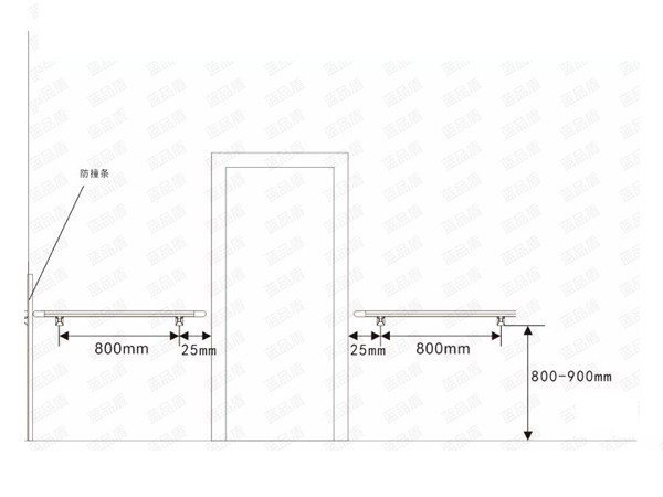
1)在墻體上放好水平線(一般扶手底部距離地面是80-90cm),用記號筆在墻面上做好標記。如果是已經鋪好瓷磚的墻面,要先用破瓷鉆頭打孔,在用沖擊鉆頭打孔。把支座固定在墻上,支座固定的位置從距離兩邊門框25cm處起,按80cm左右平均分配。量好門框中間的實際長度,專用實際長度減去16cm(兩只彎頭的長度),開截內襯和PVC面板。

2)在鋁合金型材上裝上彎頭并保留一定空隙一方便調整。輕輕地把底座安裝在鋁合金型材上。

3)對應支座的位置安裝到墻上,水平放好并上緊螺絲。
4)固定好扶手,裝上底座裝飾板,然后按照實際情況裁剪收口條并安裝上。

最后把地面清潔干凈,扶手安裝完工后可以用濕抹布擦一下就很漂亮了哦!
最新產品
同類文章排行
- 殘疾人坐便器扶手個性化定制【藍品盾】
- 樓梯扶手pvc材質耐用!【藍品盾】
- 不銹鋼衛生間門拉手-材質細膩款式簡約【藍品盾】
- 殘疾人衛生間坐便扶手-環保多功能的設計【藍品盾】
- 殘疾人坐便器扶手-貼心耐用【藍品盾】
- 老年人衛生間防滑扶手-日常必備防滑小助手【藍品盾】
- 老年人扶手款式簡單耐用【藍品盾】
- 老年人衛生間防滑扶手-材質舒適顏色鮮亮【藍品盾】
- 衛生間老人馬桶扶手-使用便捷【藍品盾】
- 樓梯無障礙扶手【藍品盾】
最新資訊文章
您的瀏覽歷史






增值服務號
移動版官網
